

Partager sur
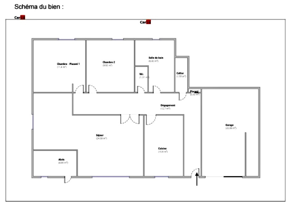
EXCLUSIVITE LES CREISSAUDS-LA PERUSSONNE. Dans une jolie maison en rdc, se trouve ce joli T3/4 très lumineux de plus 80m2. Passez le portail et un bel espace de stationnement pour plusieurs voitures et camping-car vous accueille ainsi qu'un garage de plus de 20m2, une porte laisse place à une entrée spacieuse avec 2 placards au fond, à un joli salon séjour innondé de soleil et climatisé ouvert sur la 1ère terrasse de 40m2, sur cette terrasse on a accès à une cave/atelier. Ensuite une cuisine séparée entièrement équipée pour préparer des bons petits plats. La partie nuit offre, Deux jolies chambres dont une avec placard, une salle de bains confortable avec fenêtre et un wc séparé. Plusieurs solutions pour une 3ème chambre. La cerise sur le gâteau, pour profitez du soleil un beau jardin arboré avec la 2ème terrasse derrière la maison, aménagée d'un salon, de table et d'un abri de jardin. Le terrain est piscinable. Entrée indépendante, pas de vis-à-vis. CALME ET TRANQUILITÉ. Proche Casamance. A Visiter rapidement!! Honoraires à la charge du vendeur. 06 83 29 05 78 Colette Combes. Les informations sur les risques auxquels ce bien est exposé sont disponibles sur le site Géorisques https://www.georisques.gouv.fr
Code postal 13400
Surface habitable (m²) 80 m²
surface terrain 280 m²
Nombre de chambre(s) 2
Nombre de pièces 3
Vue Ciel - Verdure
Mode de chauffage Electrique, Climatisation
Type de chauffage Radiateur, Air pulsé
Format de chauffage Central, Individuel
Nombre de garage 1
Exposition EST-OUEST
Année de construction 1978
Quartier Les Creissauds
Copropriété OUI
Lot n° 1
nombre de lots 2
Quote Part annuelle des charges 125 €
Prix de vente honoraires TTC inclus 379 000 €
* : Les informations recueillies sur ce formulaire sont enregistrées dans un fichier informatisé par La Boite Immo agissant comme Sous-traitant du traitement pour la gestion de la clientèle/prospects de l'Agence / du Réseau qui reste Responsable du Traitement de vos Données personnelles.
La base légale du traitement repose sur l’intérêt légitime de l'Agence / du Réseau.
Elles sont conservées jusqu'à demande de suppression et sont destinées à l'Agence / au Réseau.
Conformément à la loi « informatique et libertés », vous pouvez exercer votre droit d'accès aux données vous concernant et les faire rectifier en contactant l'Agence / le Réseau.
Si vous estimez, après avoir contacté l'Agence / le Réseau, que vos droits « Informatique et Libertés » ne sont pas respectés, vous pouvez adresser une réclamation à la CNIL.
Nous vous informons de l’existence de la liste d'opposition au démarchage téléphonique « Bloctel », sur laquelle vous pouvez vous inscrire ici : https://www.bloctel.gouv.fr
Dans le cadre de la protection des Données personnelles, nous vous invitons à ne pas inscrire de Données sensibles dans le champ de saisie libre
Ce site est protégé par reCAPTCHA, les Politiques de Confidentialité et les Conditions d'Utilisation de Google s'appliquent.